Картофелесажалка для мотоблока чертежи и размеры
Для того чтобы изготовить подобную технику, необходимо сначала как следует подготовиться. Рассчитать все значения и сделать чертёж конструкции – важнейшие действия, которые помогут избежать ошибок в дальнейшем.



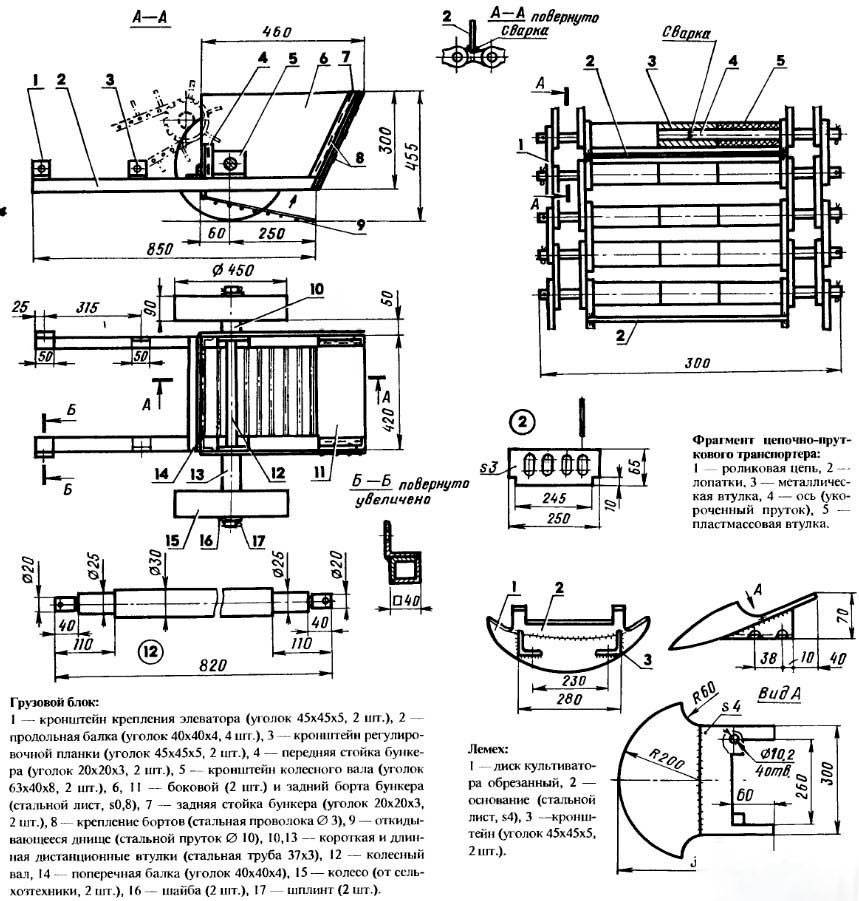
Любой механизм, для чего бы он ни предназначался, имеет в своей основе раму, к которой и крепятся тем или иным образом все рабочие детали. В нашем случае рама изготавливается из отрезков стального швеллера, из которых изготавливается подобие двух продольных лонжеронов, они скреплены между собой тремя отрезками стальной полосы. В передней части этих лонжеронов приваривается стальная арка с вилкой крепления с центральной тягой, к конструкции также присоединены два кольца для крепления нижней тяги.
С боковых сторон рамы монтируются опоры пластинчатого типа, служащие для крепления семяпроводящих труб и дисков для заделки борозд.
После этих операций стоит укрепить раму и усилить её с помощью стальных полос.
Арка также нуждается в усилении, производим это действие, используя для укрепления накладками и косынками из листовой стали, вырезанными в виде прямоугольного треугольника.
Бункер (ёмкость для посадочного материала), укрепляется к пластиновидному кронштейну с помощью двух болтов.
Сборка бункера
Для его изготовления потребуется фанера, её толщина должна быть от 0,8 до 1,2 мм. Детали вырезаем по шаблону электролобзиком, после этого элементы конструкции обрабатываем олифой или другими подходящими по свойствам составами и собираем на уголки из стали. Готовое изделие можно выкрасить водостойкой, хорошо выдерживающей атмосферные и механические воздействия краской. Внутри бункера делается выстилка из резины во избежание травмирования клубней.
После этих действий на раму будущей сажалки с применением болтов необходимо прикрепить держатель разрыхляющих лап и ось для колёс агрегата.
Ось состоит из трубы (сталь или чугун), обязательно толстостенной, потому что на неё приходится весьма немалая нагрузка, шипообразных вставок или металлических цапф, изготовленных на станке, и удерживаемых штифтами. После проведения окончательной сборки всего механизма штифты нужно заварить. Крепёж колёсной оси производится с применением стальных прочных прижимов и соответствующего размера болтов.
Колёса, рыхлители и их держатели. Сеящее устройство
Колёса можно использовать как готовые от некрупной сельхозтехники, так и самодельные. Для изготовления последних потребуются стальные листы. Самостоятельно изготовленные колёса предпочтительней, потому что они спроектированы в виде цилиндров, достаточно широких, чтобы снизить по максимуму уплотнение почвы вследствие придавливания её колёсами.
Ступицы колёс присоединены при помощи сварочного аппарата и насажены на два шарикоподшипника. Подшипниками колёса надеваются на шипы оси, для предохранения пот попадания внутрь подшипников грязи, пыли и частей растений и корешков можно воспользоваться сальниками или соорудить манжеты.
Держаки для рыхлящих лап нужно при помощи сварных работ собрать штангу квадратной формы, для этого потребуются уголки металлические 500х500х50 миллиметров. Обычный квадрат сварного типа может деформироваться в процессе проведения работ, поэтому уголки использовать надёжнее.
С двух сторон получившейся штанги нужно прикрепить обоймы, в которые впоследствии будут вставляться стойки культивирующих деталей картофелесажалки. В проведении этой работы необходимо соблюдать точность – зазор между материалом обоймы и стойкой не должен быть более одного миллиметра.
Само посадочное устройство потребует для изготовления стальную трубу с сечением 100 миллиметров, труба должна быть толстостенной, чтобы избежать её сгибания от контакта с почвой. Снизу с передней стороны к трубе крепится сошник для нарезки борозд. Этот элемент должен быть регулируемым, чтобы производить контроль над заглублением семян. В основном регулирование его положения проводится с помощью ослабления стремянок и вертикальных движений трубы-сеялки.
Диски для заделки борозд и формирования гребня борозды для этой сажалки можно взять от сеялки СО-4,2, но в этом случае потребуется их небольшая модификация. Нужно будет расточить или рассверлить отверстия ступиц и заменить подшипники, потому что в стандартной комплектации эти диски имеют всего один шарикоподшипник с маркировкой 203. В расточенные отверстия отлично впишется подшипник 160503, который куда лучше отвечает требованиям.
Что нужно знать о картофелесажалках?
В частном огородничестве среди механизированной техники обычно используют мотоблоки всех классов, немного реже мини-трактора.
Следовательно, картофелесажалки также подбираются под уже имеющуюся технику.
Несмотря на большое количество разновидностей картофелесажалок, представленных на рынке, и такого же количества мотоблоков, между собой модели обеих представителей не всегда совместимы.
Как правило, картофелесажалки проектируют под использование с конкретной моделью (или модельным рядом) мотоблока, в соответствие с его техническими характеристиками.
Однако, в продаже также можно найти различные адаптеры, позволяющие совмещать с любой моделью мотокультиватора или мотоблока понравившийся картофелесажатель.
Как выбрать картофелесажалку в магазине
На выбор картофелесажалки влияет ее совместимость с вашим мотоблоком. Некоторые фирмы придерживаются политики использования данного устройства только с их же производимой самоходной техникой. Но некоторые модели весьма универсальны и подходят ко всем мотоблокам.
Кроме совместимости, важны следующие факторы:
- масса и эргономичность;
- продуктивность;
- способность к регулировке и настройке.
Важна также вместительность бункера, которая может варьироваться в пределах от двух до пяти ведер посадочного материала. Чем больше бункер, тем реже вы будете останавливаться для дозагрузки картофеля, но при этом увеличение массы снизит маневренность устройства. Если ваш участок небольшой, выбирайте однорядную картофелесажалку.

Двухрядное устройство обладает большей производительностью и предназначено для обработки больших посадочных площадей. У некоторых вариантов есть дополнительные емкости для удобрений, вносимых вместе с картофелинами.
Картофелесажалка для мотоблока Нева
Мотоблок Нева является отличным помощником при посадке картошки. Чтобы упростить этот процесс, к устройству производят определенные насадки, которые именуются картофелесажалками. Самые востребованные виды приспособлений:
- КС-1А. Весит агрегат 33 килограмма, при прохождении 1 метра производит посадку 5 единиц картофеля. Овощи помещают в ковш, где соответствующий механизм укладывает клубни в почву. Далее встроенный культиватор загребает землю и разравнивает ее. Стоимость в среднем составляет около 15 000 рублей.
- КС-1. Эта навесная техника также отлично подходит для тяжелого мотоблока Нева. Вес ее составляет 25 килограмм. Способна за 60 минут засадить картофелем пятую часть гектара. Как и модель КС-1А производится в России. Ее можно приобрести за 13 000 рублей как у самих производителей, так и в специальных точках продаж или интернете.
- КСМ-1. Это более тяжелая и объемная техника весом до 44 килограмм. Производит посадку более часто, чем в предыдущих моделях, через каждые 25 сантиметров. Цена в среднем варьируется от 11 500 до 12 000 рублей.
- КСТ-1. Имеет небольшие размеры, но главной ее особенностью будет возможность одновременно с высаживанием овощей осуществлять внедрение в землю разнообразных удобрений.
В этом видео вы узнаете плюсы и минусы картофелесажалки:
Выбирая подходящую картофелесажалку, следует обратить внимание на главные критерии. Нужно определиться с необходимым объемом чаши и размерами приспособления
Уменьшая легкость транспортировки, можно способствовать ухудшению производительности.
Как сделать самостоятельно сажалку для картофеля
Многие овощеводы и фермеры предпочитают не тратить средства, а изготавливать картофелесажалки своими руками.
Необходимые материалы и инструменты
Для изготовления потребуются:
- Уголки и металлические трубы, из которых будет создаваться рама. Также они нужны для монтажа других элементов конструкции.
- Шестерни — элементы, которые обеспечивают работу механизма посадки.
- Бункер для закладки картофеля. Берут готовую емкость или изготавливают ее из листовой стали.
- Части, предназначенные для создания лунок и их закапывания после посадки.
- Колесная база.
Перечисленные элементы — обязательные для домашней картофелесажалки. Их изготавливают самостоятельно или же снимают со старой сельскохозяйственной техники.
Для работы понадобятся:
- болгарка;
- сварочный аппарат;
- лонжероны;
- швеллеры;
- пара осей;
- подшипники;
- цепь от двигателя автомобиля;
- две звездочки для цепи;
- проволока сечением 6 мм;
- листовой металл толщиной 2 мм;
- профильная стальная труба;
- любая конусообразная емкость для бункера.
Чертежи, размеры и основные элементы
Внешне самодельная картофелесажалка похожа на тележку на колесах, присоединенную к мотоблоку или минитрактору. Рассмотрим, из чего состоит самая простая конструкция.
«Тележку» ставят на раму из швеллеров. К ее передней части монтируют стальную арку и вилку. По бокам рамы устанавливают стойки заделывающих дисков и опоры системы подачи клубней.
Важно! Заделывающие диски — важный элемент. Благодаря им борозды получаются ровными, а картофель не заглубляется больше, чем надо

Раму, в свою очередь, устанавливают на ось с двумя колесами шириной не менее 15 мм, оснащенными грунтозацепами. Простые резиновые колеса не подойдут, так как будут пробуксовывать.

По готовым чертежам с размерами можно своими руками изготовить крутую картофелесажалку практически из металлолома (см. фото 1, 2, 3, 4).


Пошаговая инструкция
Многие умельцы дополняют «базовую сборку», например, дозатором для удобрений. Такое устройство позволяет одновременно с посадкой осуществлять подкормку.
Рассмотрим подробнее процесс сборки сажалки для мотоблока и минитрактора.
Для мотоблока
Сначала изготавливают раму. Для этого используют швеллер (стальной типоразмер 8). К раме крепят продольные лонжероны с тремя поперечинами.
Для бункера обычно берут листовую сталь, но для малой техники подойдет и фанера толщиной 10 мм. На 20 кг картофеля этого будет достаточно.
В бункере устанавливают лифт, который закрепляют в вертикальном положении. На нем располагают чаши диаметром 5-8 см. Чтобы все работало, механизм присоединяют через цепную передачу к ведущему колесу. Для вывода клубней семяпровод закрепляют под лифтом.
Звездочку (8 см) для передачи силы связывают по цепи с мотоблоком. Этот элемент передает движение прокапывающим дискам.
Такая конструкция позволяет использовать обычную велосипедную цепь. Расстояние между клубнями будет составлять 35 см.
Важно! После основного монтажа раму обязательно укрепляют при помощи стальных полос. Арке также требуется усиление
Для этого используют накладки из листовой стали.
Для минитрактора
Схема такого агрегата представлена на фото:

Алгоритм действий:
- Изготовление начинается с рамы, на которой будут размещаться остальные элементы. Для этого из швеллеров сваривают продольные лонжероны. Их соединяют между собой стальными полосками.
- Спереди приваривают арку с вилками, направленными к центральной тяге.
- Раму усиливают стальными балками. Их закрепляют с другой стороны и к середине арки.
- Из уголка делают опору подседельника и монтируют на лонжерон.
- К наклонным балкам приваривают кронштейн, на котором будет размещаться бункер.
- Резервуар для картофеля сваривают из листовой стали толщиной 2 мм.
- Бункер закрепляют на кронштейне болтами.
- Теперь к нижней части рамы монтируют рыхлитель и колесную ось. Для оси в качестве основы берут обычную стальную трубу, на концах которой размещают цапфы. Для колесной базы можно брать колеса от старой техники.
- Держатели рыхлителя изготавливают в виде квадратов, сделанных из штанг. По концам наваривают обоймы с толщиной стали 6 мм. В них будут располагаться культиваторные стойки.
- Сеятель делают из стальной трубы с сечением 100 мм. Минимальная толщина стенки должна составлять 3 мм.
- К нижней части этой трубы приваривают бороздорез. Толщина стали — не менее 6 мм.
Настройка и регулировка картофелесажалки КСМ-4А
Подачу клубней в питательные ковши регулируют заслонками основного бункера, а густоту посадки картофеля — частотой вращения сажальных дисков с помощью переменных звездочек(13, 15, 17, 18, 20 и 22 зубцов) на промежуточном валу механизма привода. Угол вхождения сошников в почву регулируют изменением длины верхней тяги подвесок сошников, а диапазон приспособления сошников к неравенствам рельефа поля — упорным болтом секций. Глубину хода сошников регулируют перемещением по высоте копировальных колес, а глубину завертывания клубней картофеля и форму гребней — поворотом косынок на полуосях сферических дисков и изменением натяжения пружин штанг натисков. Дозу внесения минеральных удобрений регулируют перемещением рычагов регуляторов туковысевных аппаратов. Для хозяйств в настоящее время покупка и продажа картофелесажалок, как новых так и бывших в употреблении по умеренной цене не представляет особой сложности. Главное разобраться и сделать выбор среди большого разнообразия агрегатов представленных на рынке.
Финишная обделка
Последний и завершающий этап создания картофелесажалки проводится по желанию владельца. Этот этап предусматривает зачистку швов и покраску самого агрегата. Перед покраской нужно очистить грязь и ржавчину с металла. Нужно помнить, что окрашенный метал будет служить дольше, при этом еще и эстетично выглядеть.
Самостоятельная сборка агрегата является сложным процессом. В связи с чем нужно определиться заранее, браться за работу самому или звать специалистов и браться ли вообще. Безусловно, сбережения экономятся, но требуются определенные технические знания.
Особенности самодельных сажалок
Многие дачники, обладающие хотя бы минимальными навыками работы с металлом, предпочитают самостоятельно изготавливать сеялки в своей домашней мастерской.
Для этого вам понадобятся следующие материалы и элементы:
- пара ходовых колес;
- деревянный ящик для посадочного материала;
- метизы;
- стальные листы;
- прорезиненые пласты;
- валик для выращивания;
- стальные уголки и шипы;
- подшипники;
- кронштейн.


Процесс изготовления сажалки довольно прост, но он требует максимальной собранности и концентрации внимания, именно поэтому тут следует заострить особое внимание на следующих нюансах работы:
- семенной ящик изготавливают только из дерева, причем толщина досок не должна превышать 15 мм, а вот для их укрытия можно использовать накладные донца из стали толщиной 1 мм;
- стенки конструкции лучше соединять железными уголками, а также шипами и саморезами;
- по нижней стенке ящика крепят накладки из древесины;
- механизм крепления высевающего валика обязательно сочетается с формированием вырезов полукруглой формы, обычно к накладкам крепят кронштейны при помощи шурупов;
- в донышках размещают резиновые пластинки, что способствуют максимально полному выведению семян в грунт;
- сошники можно изготавливать из листа стали, затем цеплять кронштейнами.

Как выбрать картофелесажалку в магазине
На выбор картофелесажалки влияет ее совместимость с вашим мотоблоком. Некоторые фирмы придерживаются политики использования данного устройства только с их же производимой самоходной техникой. Но некоторые модели весьма универсальны и подходят ко всем мотоблокам.
Кроме совместимости, важны следующие факторы:
- масса и эргономичность;
- продуктивность;
- способность к регулировке и настройке.
Важна также вместительность бункера, которая может варьироваться в пределах от двух до пяти ведер посадочного материала. Чем больше бункер, тем реже вы будете останавливаться для дозагрузки картофеля, но при этом увеличение массы снизит маневренность устройства. Если ваш участок небольшой, выбирайте однорядную картофелесажалку.

Двухрядное устройство обладает большей производительностью и предназначено для обработки больших посадочных площадей. У некоторых вариантов есть дополнительные емкости для удобрений, вносимых вместе с картофелинами.
Картофелесажалка для мотоблока чертежи и размеры
Для того чтобы изготовить подобную технику, необходимо сначала как следует подготовиться. Рассчитать все значения и сделать чертёж конструкции – важнейшие действия, которые помогут избежать ошибок в дальнейшем.



Любой механизм, для чего бы он ни предназначался, имеет в своей основе раму, к которой и крепятся тем или иным образом все рабочие детали. В нашем случае рама изготавливается из отрезков стального швеллера, из которых изготавливается подобие двух продольных лонжеронов, они скреплены между собой тремя отрезками стальной полосы. В передней части этих лонжеронов приваривается стальная арка с вилкой крепления с центральной тягой, к конструкции также присоединены два кольца для крепления нижней тяги.
С боковых сторон рамы монтируются опоры пластинчатого типа, служащие для крепления семяпроводящих труб и дисков для заделки борозд.
Арка также нуждается в усилении, производим это действие, используя для укрепления накладками и косынками из листовой стали, вырезанными в виде прямоугольного треугольника.
Бункер (ёмкость для посадочного материала), укрепляется к пластиновидному кронштейну с помощью двух болтов.
Сборка бункера
Для его изготовления потребуется фанера, её толщина должна быть от 0,8 до 1,2 мм. Детали вырезаем по шаблону электролобзиком, после этого элементы конструкции обрабатываем олифой или другими подходящими по свойствам составами и собираем на уголки из стали. Готовое изделие можно выкрасить водостойкой, хорошо выдерживающей атмосферные и механические воздействия краской. Внутри бункера делается выстилка из резины во избежание травмирования клубней.
После этих действий на раму будущей сажалки с применением болтов необходимо прикрепить держатель разрыхляющих лап и ось для колёс агрегата.
Ось состоит из трубы (сталь или чугун), обязательно толстостенной, потому что на неё приходится весьма немалая нагрузка, шипообразных вставок или металлических цапф, изготовленных на станке, и удерживаемых штифтами. После проведения окончательной сборки всего механизма штифты нужно заварить. Крепёж колёсной оси производится с применением стальных прочных прижимов и соответствующего размера болтов.
Колёса, рыхлители и их держатели. Сеящее устройство
Колёса можно использовать как готовые от некрупной сельхозтехники, так и самодельные. Для изготовления последних потребуются стальные листы. Самостоятельно изготовленные колёса предпочтительней, потому что они спроектированы в виде цилиндров, достаточно широких, чтобы снизить по максимуму уплотнение почвы вследствие придавливания её колёсами.
Ступицы колёс присоединены при помощи сварочного аппарата и насажены на два шарикоподшипника. Подшипниками колёса надеваются на шипы оси, для предохранения пот попадания внутрь подшипников грязи, пыли и частей растений и корешков можно воспользоваться сальниками или соорудить манжеты.
Держаки для рыхлящих лап нужно при помощи сварных работ собрать штангу квадратной формы, для этого потребуются уголки металлические 500х500х50 миллиметров. Обычный квадрат сварного типа может деформироваться в процессе проведения работ, поэтому уголки использовать надёжнее.
С двух сторон получившейся штанги нужно прикрепить обоймы, в которые впоследствии будут вставляться стойки культивирующих деталей картофелесажалки. В проведении этой работы необходимо соблюдать точность – зазор между материалом обоймы и стойкой не должен быть более одного миллиметра.
Само посадочное устройство потребует для изготовления стальную трубу с сечением 100 миллиметров, труба должна быть толстостенной, чтобы избежать её сгибания от контакта с почвой. Снизу с передней стороны к трубе крепится сошник для нарезки борозд. Этот элемент должен быть регулируемым, чтобы производить контроль над заглублением семян. В основном регулирование его положения проводится с помощью ослабления стремянок и вертикальных движений трубы-сеялки.
Диски для заделки борозд и формирования гребня борозды для этой сажалки можно взять от сеялки СО-4,2, но в этом случае потребуется их небольшая модификация. Нужно будет расточить или рассверлить отверстия ступиц и заменить подшипники, потому что в стандартной комплектации эти диски имеют всего один шарикоподшипник с маркировкой 203. В расточенные отверстия отлично впишется подшипник 160503, который куда лучше отвечает требованиям.
Разновидности картофелесажалок
На рынке представлены картофелесажалки нескольких видов, отличающихся между собой по форме и размеру, функциональным возможностям. Различен и размах цен на такие устройства. Можно приобрести как дорогие многофункциональные модели, так и недорогие бюджетные устройства.
Малогабаритные
Картофелесажалки небольших размеров используются для посадки семенного картофеля на приусадебном участке или на дачном огороде.
Конструкция устройства оснащена регулятором глубины посадки картофельных клубней и регулятором высоты земляного гребня, образующегося за счёт поднятия грунта.
Малогабаритные картофелесажалки подходят для мотоблоков как отечественных, так и зарубежных производителей.
Вес устройства в среднем составляет около 20−25 кг. Объем бункера составляет до 34 л. С её помощью можно обрабатывать ряды шириной от 60 до 75 см и посадить 6−7 картофелин на метр. Скорость посадки составляет 0,2 га/час.
Средние
Такие картофелесажалки имеют вместительный бак объёмом 44 литра. Это довольно большие тяжёлые сажалки, их вес составляет 41 кг, а производительность — 0.2—0.25 га/ч. Такие сажалки агрегатируются со средними и тяжёлыми мотоблоками.
Крупные
Применяются для обработки больших площадей. Имеют крупногабаритный бункер, картофель в который засыпается с помощью самосвала. Прикрепляется к трактору. Это мощные дорогие агрегаты, используемые в сельском и фермерском хозяйстве.
Стоимость устройств
Стоимость разных картофелесажалок зависит от факторов:
- Объёма бункера. Мощные крупные сажалки для картофеля имеют бункер большого размера. Ими удобно пользоваться, так как не потребуется часто насыпать клубни в бункер и останавливать для этих целей мотоблок. Для небольшого дачного участка можно приобрести более дешёвые модели устройств с меньшим объёмом бака, вполне достаточным для обработки небольших территорий.
- Возможность комплектования с мотоблоками разных видов. Чем больше вариантов сцепления предусмотрено, тем проще подобрать сажалку, и тем дороже будет её стоимость. При ограниченных средствах можно приобрести недорогую картофелесажалку и адаптеры к ней, также позволяющие комплектовать её с любым мотоблоком.
Популярные модели картофелесажалок
Рассмотрим, какая техника пользуется популярностью на рынке. Поговорим про лучшие модели крупногабаритной, средней и мелкогабаритной техники по отдельности, основываясь на заводских характеристиках моделей и отзывах людей, испытавших большое количество подобной техники (Юрий Сербин, к примеру). Сразу же оговоримся, что если рассматривать советские и современные модели, то последние многофункциональны и регулируемы.
Крупногабаритная техника

Современная техника поможет в посадке картофеля
Если говорить о том, какие модели зарекомендовали себя на рынке, то стоит отметить четырехрядные картофелесажалки HASSIA
Обратите внимание и на модели SL 4 BZS, которые приглянулись многим фермерам. Производят данную технику в Германии
Практически ко всем мотоблокам подходит агрегат КСП-02.
Неплохую технику изготавливает украинская компания ГРИММЕ (GRIMME). Среди сверхтяжелых конструкций следует отметить восьмирядную GRIMME VL 20 KLZ. Отличные характеристики у четырехрядных моделей Grimme GL 34T, ЛИДСЕЛЬМАШ Л-202, Л-202-01 и Л-207, которые производятся белорусской компанией, российские модели СКН 4А и СН 4Б. Последняя оснащена бункером для удобрений.
Вся сельхозтехника, которую производит Беларусь, в целом отличается неплохим качеством. Также популярна техника компании КРАМЕР. Еще одна неплохая крупногабаритная модель, изготовленная белоруской компанией – СПК-4.
Имеет хорошую репутацию сельскохозяйственная техника польской компании БОМЕТ (BOMET). Популярной является модель s239. Многофункциональностью отличается АПК-3, которую изготавливают в Полтаве.
Неплохие отзывы о чешской фирме AGROZET, а вот китайская и японская техника не прижилась на отечественном рынке.
Средняя и малогабаритная техника
Для небольшого хозяйства подойдет картофелесажалка КСМ-1. Пользуется спросом усовершенствованная модель КСМ-3. Изготавливают эту технику в Запорожье
Еще из малогабаритных моделей обратите внимание на картофелесажалку Томаровка КСТ-1А, которая производится в России. Ее можно использовать со многими моделями мотоблоков, в частности популярными Нева, Ока, Кадви
Неплохой вариант для частного пользования – однорядная Л-201, изготовленная компанией ЛИДСЕЛЬМАШ, и 2СМ-1. Это простая модель, выполненная из качественных деталей. Популярностью пользуется мотоблочная картофелесажалка КСМ-1Л.
Еще одна популярная двухрядная картофелесажалка – КС-2МТ. Она работает в сцепке с мини-трактором, поскольку ее вес превышает 100 кг. Можно соорудить минитрактор самостоятельно, поставив на него двигатель от мотоблока Ока. Работа с таким оборудованием возможна даже на тяжелых грунтах.
Совместимость с мотоблоками
Малогабаритная техника, согласно своим техническим характеристикам, совместима с мотоблоками: Ока, Нева, NAC TIP38-140-M, Салют, Каменская, Протон МБ-80, Урал, Husqvarna TR 430, Крот МК-1А-02 и МК-1А-01-Ц, Forte HSD1G-25. Двухрядные модели можно использовать с мотоблоками Зубр, цена на которые достаточно привлекательна, Беларус 09н, ОКА МБ-1Д1М11, Форза 6.5. Неплох и фрезерный культиватор Мотор Сич КФ-1С.
К минитрактору с двигателем Ока подойдет модель СКС-4,СКМ-2, Miedema CP-22 фирмы Колнаг. А вот для крупногабаритной навесной или полунавесной техники подойдет трактор МТЗ-82.
Инструментарий и материалы
Чтобы сделать сажалку картофеля своими руками, понадобится немалый комплект инструментов и деталей. Рассмотрим эту комплектность.
Оси, цепь от велосипеда (либо цепь от мотора автомашины), подшипники для колес и создания цепного подъемника.
- Железный лист для сооружения загрузочной емкости.
- Железный профиль с круглым либо квадратным сечением – для монтирования рамы-держателя и иных целей.
- Сварочное оборудование для надежного соединения компонентов сажалки картофеля промеж собой.
- Электроды различной мощности для выполнения сварочных работ.
- Углошлифовальная машина и круги для разрезания железного листа на подходящие детали.
- Электрическая дрель и сверла к ней для осуществления сверловочных работ.
- Детали крепления для надежности устройства.
- Гайки и болты для монтирования конструкции.
- Несколько метров проволоки для фиксирования отдельных частей приспособления.
- Наждачка либо напильник для шлифования и чистки элементов.
Предварительно необходимо сделать все чертежи (можно найти в специальной литературе или интернете), тщательно изучить их, продумать габариты будущего приспособления и его наружный облик, метод фиксации к мототехнике. Габариты картофелесажалки не должны быть сильно крупными, чтобы устройство получилось в соответствии с имеющейся в наличии мототехникой.
Инструкция
Многие задаются вопросом — как сделать картофелесажалку своими руками, чертежи которой находятся в интернете? Действительно, в сети есть достаточно рекомендаций с подробным описанием и размерами, следуя которым, можно изготовить достаточно работоспособный агрегат.

Алгоритм действий
Алгоритм действий, в таком случае, будет примерно следующим:
- Начинать нужно конечно же с изготовления рамной конструкции, на которую будут крепиться остальные составляющие. Для этого нам понадобятся швеллеры номер 8, из которых сваривают два продольных лонжерона, соединенные между собой тремя поперечными полосами стали.
- Впереди конструкции нужно приварить арку с вилками крепления, идущими к центральной тяге.
- Усилит раму можно двумя стальными балками наклонного типа, которые нужно закрепить второй стороной к середине арки. Далее нужно закрепить опору подседельника, сделанного из уголка 5x5x0,5 см. Крепим его к лонжерону собственноручно.
- К наклонным балкам нужно приварить кронштейн пластичного типа. Именно к этим балкам будет присоединен резервуар для картофеля.
- Для резервуара нам понадобится обычная фанера, толщина которой будет составлять примерно 12 мм. Вырезаем все стороны бункера, а затем крепим их между собой стальными углами. Кстати, не лишним будет обработать короб олифой для защиты его от воздействия влаги.
- Внутри резервуара можно установить резиновые листы, чтобы картофель не повреждался об его стенки во время движения. Далее крепим бункер к кронштейну, с помощью двух болтов.
- Далее нужно закрепить к нижней части рамы колесную ось и рыхлитель. В принципе, можно посмотреть чертежи картофелесажалки, сделанной своими руками, для большей наглядности.
- Колесная ось представляет собой конструкцию, сделанную из различных частей. За основу можно взять обычную трубу из стали, на концах которой нужно установить цапфы. Здесь точные размеры дать сложно, в зависимости от того, какой диаметр трубы вы используете.
- Поэтому, цапфы нужно подогнать под эти размеры на токарном станке.
- В стальной трубе нужно просверлить отверстия, в которые будут установлены специальные штифты с шипами. В конце их нужно обязательно заварить.
- Колесную ось нужно закрепить при помощи прижимов из стали, с помощью болтов М16 в количестве 4 штук.

Колеса от старой техники
- В качестве колесной базы можно использовать колеса от старой техники сельхоз назначения. Если таковые отсутствуют, то нужно немного потрудиться в этом плане.
- На колеса нужно приварить ступицы, на которых потом нужно насадить по паре подшипников. Далее насаживаем подшипники на шипы, защищаем прокладкой из войлока, чтобы излишне не загрязнялись.
- Детали, держащая рыхлители, представлена в виде квадрата из стальных штанг, сваренных между собой. По концам квадрата нужно приварить обоймы из листовой стали 6 мм. Внутри них будут расположены стойки культиваторных лопастей.
- Сеятель для данного агрегата изготавливается из стальной трубы, диаметр которой составляет 100 мм. При этом, толщина стенки трубы должна быть не менее 3 мм, чтобы конструкция не гнулась в процессе работы.
- Снизу трубы приваривается бороздорез, изготовленный из листовой стали толщиной 6 мм.
- Обязательно нужно присоединить к раме сиденье для человека, а также подставку для ног. Сама рамная конструкция сиденья изготавливается из уголков, сваренных между собой. Сиденье можно сделать из обычных досок, которые обтягивают чем-нибудь мягким — поролоном, к примеру.
В принципе, размеры самодельной картофелесажалки указаны приблизительно, на основании конкретного случая. В любом случае, данная схема рабочая, поэтому можно смело конструировать агрегат, опираясь на данные параметры.
Узнайте более подробно как сделать

Картофелесажалка для Т-25
Подобным образом изготавливается и самодельная картофелесажалка для Т 25, ведь нет определенного значения от того, что будет выполнять роль основной тяги — мотоблок или минитрактор. Конечно, различными будут показатели мощности, но сама конструкция картофелесажалки практически идентичная.
Советы по выбору
Чтобы правильно выбрать сажалку, следует принять во внимание несколько базовых факторов
Размер. Как правило, сеялки имеют от 6 до 48 рядов. Выбор здесь зависит только от размера участка, очевидно, что чем больше количество рядов – тем выше скорость работы, соответственно, чем больший объем работы вам предстоит – тем более габаритной должна быть сажалка.
Междурядное расстояние. Если вы приобретаете сеялку для высаживания нескольких типов культур, то лучше отдать предпочтение моделям, в которых присутствует возможность задавать требуемое расстояние между рядами. Если же вы планируете культивировать только один вид растений, например, картофеля, на протяжении нескольких лет, то здесь можно вполне обойтись без этой дополнительной функции.
Подача семян. Здесь все аналогично. Если вы намереваетесь из года в год сажать одни и те же семена – приобретайте модель с порционной подачей материала
Если вам необходимо загружать в устройство семена разных овощных и злаковых культур – то лучше приобрести модель, оснащенную сменными бункерами.
Обратите внимание на систему перераспределения веса семян, поскольку большая их часть подается на землю через семяпроводы, то повышение плотности в центральной части может привести к общему снижению урожайности. Желательно выбирать более современные модели, оснащенные флотационными шинами.

Высевающий аппарат должен отличаться высочайшим качеством. Его дозатор должен гарантировать правильность и точность посадки. Оптимально, если он будет дополняться возможностью калибровки посадок.
Прижимная сила. Это важный показатель, который указывает на то, с какой силой сошники погружаются в грунт
Это непосредственно влияет на качество посадок и глубину заделки семян, поэтому на данный параметр следует обратить особое внимание.
Система заделки. Ну и наконец, один из самых важных параметров надежности установки – это система заделки посадочного материала
Если изделие отличается высоким качеством, то система должна тщательно выравнивать бороздки таким образом, что даже следов от них не будет оставаться. Специалисты рекомендуют отдавать предпочтение модификациям с возможностью перенастройки под различные условия посевных земель.

Заключение
Становится очевидным, что ответ на вопрос, как посадить картошку мотоблоком, очень прост. Немного сноровки, которая придёт уже после первого ряда, и работа закипит. Ну а если соблюдать все рекомендации специалистов по расстоянию между рядами картофеля и его заглублению, урожай обязательно порадует садовода. Кстати, российские умельцы уже давно освоили изготовление мотоблоков своими руками из бензопил, а значит, и здесь можно сэкономить значительную сумму.
ФОТО: tasteatlas.comЖелаем всем дачникам и садоводам такого урожая
Watch this video on YouTube
Предыдущая Садовая техникаПрицеп для мотоблока своими руками: модели, конструкции, технология создания
Следующая Садовая техникаКак правильно намотать леску на триммер: пошаговое руководство и видеоинструкции
prostayaferma.ru Сайт помощник фермера
















































